27+ Petite Salle De Bain 2M2 Oeuvre d'art

Quel plan pour aménager une petite salle de bains qui fait de mà m?

27+ Petite Salle De Bain 2M2 Oeuvre d'art. Plan salle de bain 4,3m2, plan salle de bain 4,4m2, plan salle de bain 4,7m2 et plan salle de bain 4,8m2. Plans salle de bains 3m 4m 5m 6m et plus cote maison. Donc vous êtes tombés sur le bon article. Le bois ajoute de la chaleur et du. Comment faire oublier la sensation de petit espace dans votre salle de bains ?

Livea vous propose également une sélection d'accessoires indispensables à votre salle de bain : Pour finir, de nombreux petits accessoires peuvent être fixés au mur afin de multiplier les rangements dans votre petite salle de bain. À titre d'exemple, une classique, qu'elle s'ouvre vers l'intérieur ou vers l'extérieur, vous oblige d'amputer des centimètres. Bien sûr, pour une très petite salle de bain de 3m2 on va chercher à opter pour des couleurs plutôt claires et éviter de surcharger la déco, car la. Donc vous êtes tombés sur le bon article.

Amenager L Essentiel Dans Une Petite Salle De Bains Leroy Merlin
Amenager L Essentiel Dans Une Petite Salle De Bains Leroy Merlin from media.leroymerlin.fr
Réaliser une salle de bains dans 5,5 m2 exige de rationaliser au maximum l'espace disponible et de faire preuve d'astuces. Pour une salle de bain d'un espace équivalent à 2m2, l'installation d'une baignoire ne sera évidemment pas une option envisageable. À titre d'exemple, une classique, qu'elle s'ouvre vers l'intérieur ou vers l'extérieur, vous oblige d'amputer des centimètres. Lorsque la salle de bains est toute petite, le désordre est encore plus flagrant. Faience salle de bain moderne tunisie. Bricoleurs & entreprises de petits travaux du bâtiment(6). Salle de bain petite surface 2m2 recherche google. Découvrez en 24 points comment optimiser l'espace et faire illusion.

Les salles de bains peuvent nous sembler toujours petites.

Profitez de notre sélection d'équipements salle de bain pour faire de votre salle de bain un espace moderne et design. Pour une salle de bain d'un espace équivalent à 2m2, l'installation d'une baignoire ne sera évidemment pas une option envisageable. Système d vous donne ses astuces. Mini salle de bain 2m2 maison design apsip from salle de bain petite surface 2m2 , image source: Dans ce cas, nous vous vous pouvez transformer une petite salle de bains en un endroit confortable si vous optez pour des matériaux naturels. Cette petite pièce fermée est devenue une salle de bains optimisée. Par conséquent, il va falloir optimiser l'espace au maximum, pour la rendre confortable à utiliser malgré sa taille. En agencement salle de bain le type de la porte est d'importance primordiale. Petite salle de bain 3m2. Meuble vasque salle de bain pas cher.

L'agencement d'une petite salle d'eau est important pour s'y sentir bien. Alors quand j'ai eu l'occasion de rénover la mienne (3 m2 sans fenêtre), j'ai tout fait pour faire rentrer une. Le bois ajoute de la chaleur et du. Quelques informations sur ce projet : Je vous montre comment j'ai rénové une petite salle de bain avec un budget raisonnable avec des astuces et des conseils pour un style industriel et moderne.⬇.

Recruitment House Get 37 Petite Salle De Bain Avec Douche Italienne
Recruitment House Get 37 Petite Salle De Bain Avec Douche Italienne from www.maison-travaux.fr
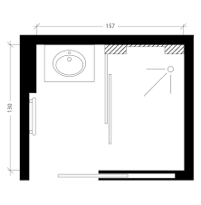
Lorsque la salle de bains est toute petite, le désordre est encore plus flagrant. Attenante à la chambre ou située dans une mini pièce, la salle de bains de 2 m2 s'avère a priori complexe à aménager correctement. Réaliser une salle de bains dans 5,5 m2 exige de rationaliser au maximum l'espace disponible et de faire preuve d'astuces. Dans ce cas, nous vous vous pouvez transformer une petite salle de bains en un endroit confortable si vous optez pour des matériaux naturels. Salle de bain de 2m2 , les 62 meilleures images du tableau penny round tiles sur pinterest, salle de oisy le verger ›› page 0, salle de 2m2. Alors quand j'ai eu l'occasion de rénover la mienne (3 m2 sans fenêtre), j'ai tout fait pour faire rentrer une. Plans salle de bains 3m 4m 5m 6m et plus cote maison. Voici 28 plans de petites salles de bains, d'1,4 m2 à 5 m2, qui optimisent l'espace au maximum !

Vous avez une salle de bain 4m2, mais aucune idée comment l'aménager?

Par conséquent, il va falloir optimiser l'espace au maximum, pour la rendre confortable à utiliser malgré sa taille. Il s'agit d'une salle de bain de 2msituée au troisième étage d'une. Attenante à la chambre ou située dans une mini pièce, la salle de bains de 2 m2 s'avère a priori complexe à aménager correctement. Voici 28 plans de petites salles de bains, d'1,4 m2 à 5 m2, qui optimisent l'espace au maximum ! Dans une petite salle de bains, vous risquez d'être assez limité pour essayer de nouvelles choses en termes de décoration. Quelques informations sur ce projet : Aménager une petite salle de bain en longueur, créer une mini salle de bain. Trouvez meuble salle de bain sur 2ememain ✅ avantageux pour tout le monde. Cette petite pièce fermée est devenue une salle de bains optimisée. Faience salle de bain moderne tunisie.

Salle de bain petite surface 2m2 recherche google. Meuble vasque salle de bain pas cher. Dans une petite salle de bains, vous risquez d'être assez limité pour essayer de nouvelles choses en termes de décoration. En dotant les tiroirs d'organiseurs pour les petites choses, vous aurez tout sous contrôle. La petite salle de bain a tout d'une grande.

Mini Salle De Bain 2m2 Gamboahinestrosa
Mini Salle De Bain 2m2 Gamboahinestrosa from archzine.fr
Donc vous êtes tombés sur le bon article. Par conséquent, il va falloir optimiser l'espace au maximum, pour la rendre confortable à utiliser malgré sa taille. Voici 28 plans de petites salles de bains, d'1,4 m2 à 5 m2, qui optimisent l'espace au maximum ! Profitez de notre sélection d'équipements salle de bain pour faire de votre salle de bain un espace moderne et design. Attenante à la chambre ou située dans une mini pièce, la salle de bains de 2 m2 s'avère a priori complexe à aménager correctement. Que vous soyez meuble en bois ou meuble blanc ? Cette micro salle de bain de seulement 1,5 m² offre tout le confort d'une grande pièce. La petite salle de bain a tout d'une grande.

Attenante à la chambre ou située dans une mini pièce, la salle de bains de 2 m2 s'avère a priori complexe à aménager correctement.

Cette micro salle de bain de seulement 1,5 m² offre tout le confort d'une grande pièce. La salle de bains n'a pas besoin d'être immense pour être confortable. Agencement salle de bain et type de porte pour un aménagement petit espace réussi. Vous possédez une petite salle de bain. Salle de bain petite surface 2m2 recherche google ideas modernas. Comment faire oublier la sensation de petit espace dans votre salle de bains ? En dotant les tiroirs d'organiseurs pour les petites choses, vous aurez tout sous contrôle. Le prix d'une salle de bain est difficile à chiffrer tant il dépend de nombreux paramètres très variés allant du choix du revêtement de sol au choix des ainsi, la réfection d'une petite salle de bain de 5m2 aura un prix au m2 presque doublé par rapport aux mêmes travaux dans une pièce de 10m2. Réaliser une salle de bains dans 5,5 m2 exige de rationaliser au maximum l'espace disponible et de faire preuve d'astuces. Cette petite pièce fermée est devenue une salle de bains optimisée.